Visión general
- Casa
- Tipo de propiedad
- 3
- Dormitorios
- 3
- Baños
- 2
- Garajes
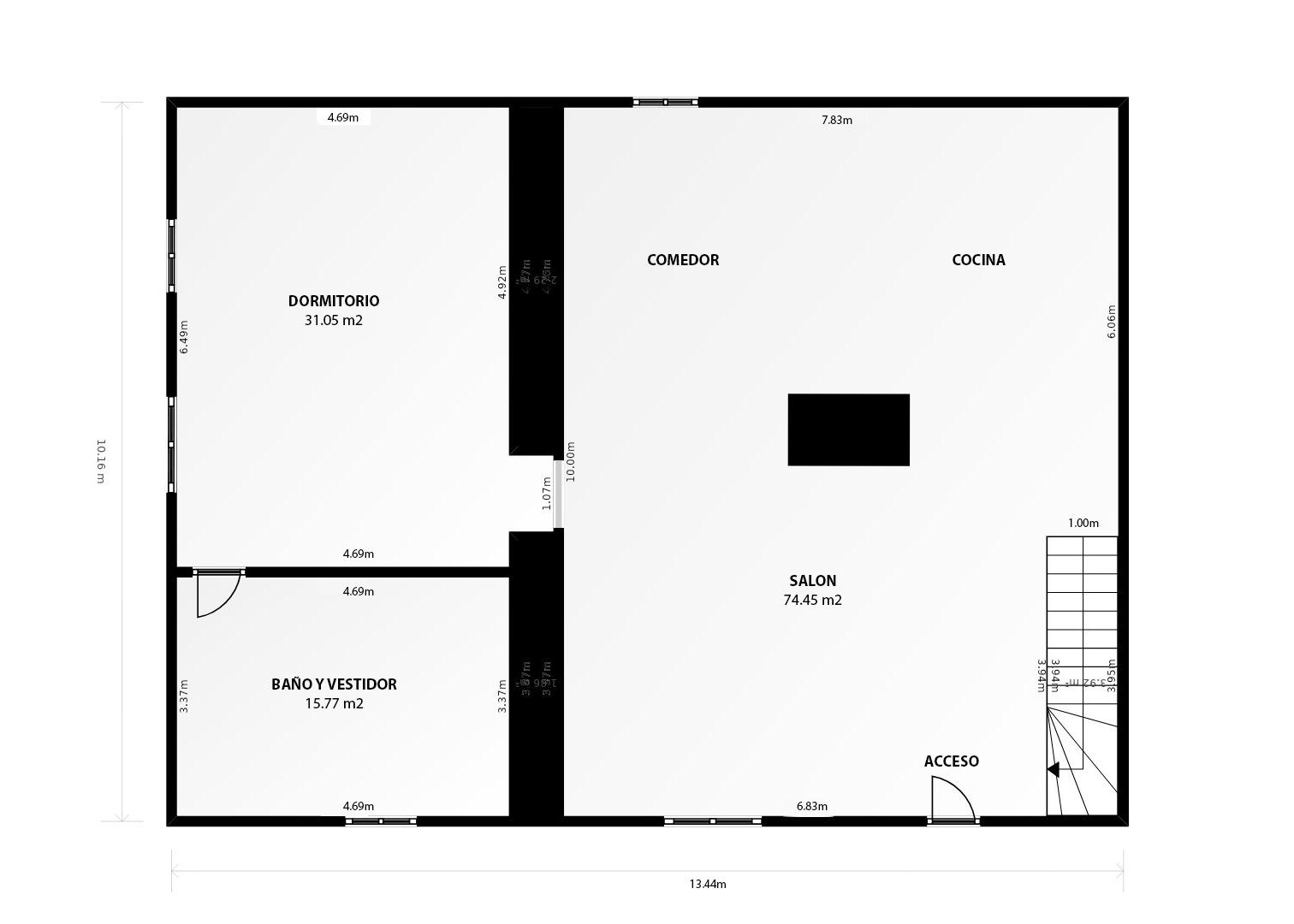
- 290.00 m2
- M2 construidos
Descripción
Obra independiente sin terminar. Cuenta con dos niveles en obra (planta baja y primer piso), con un total de 290m² edificados (145m² por planta), con 275m² útiles, sobre una parcela urbana en esquina de 216 m², quedando 80m² de patio donde se puede construir un garaje y piscina.
La normativa urbanística permite construir planta baja más 2 niveles, por lo que el comprador podrá ampliar con una planta adicional si lo desea para proyectos de inversión como edificio de uso comercial o pisos residenciales.
Ubicada en el barrio San Agustín, una zona con alto potencial de crecimiento, impulsada tanto por inversiones del ayuntamiento en zonas verdes como por promotoras privadas como AEDAS. La propiedad se sitúa en una esquina con vistas despejadas, lo que aporta una sensación de espacio abierto y buena ventilación. Zona calificada y tasada como de interés ALTO.
Posibilidad de hipotecar por 135 mil según tasación. Solo la parcela está valorada en 118 mil.
Gracias a su ubicación estratégica y a la conexión con la línea de autobús 24 hacia la Universidad, es una excelente opción para desarrollar un proyecto de alquiler para estudiantes, estudios independientes o una vivienda familiar moderna con posibilidad de expansión.
Servicios y entorno:
- Supermercados a 300 metros
- Colegios e institutos de secundaria en las cercanías
- Parques y zonas verdes
- A 14 minutos en coche de la playa
- Ciudad Deportiva Antonio Valls
- Senderos naturales a 5 minutos a pie (Montaña la Cresta)
- Rápido acceso a las autopistas A-70 y A-77
Una oportunidad ideal para construir, ampliar y rentabilizar en una zona en plena transformación.








































